Project Overview
The Craig family was looking for a kitchen that worked better for everyday life while still honoring the home’s overall style. Through a thoughtful redesign, the space was transformed with a reimagined island, a hidden walk-in Butler’s pantry, and fully custom cabinetry that elevated both function and design. The project also extended into the adjoining laundry room, where additional cabinetry and a rolling ladder created smart, accessible storage—turning a once overlooked space into one that truly supports the rhythm of daily life.
Key Features
Timeline
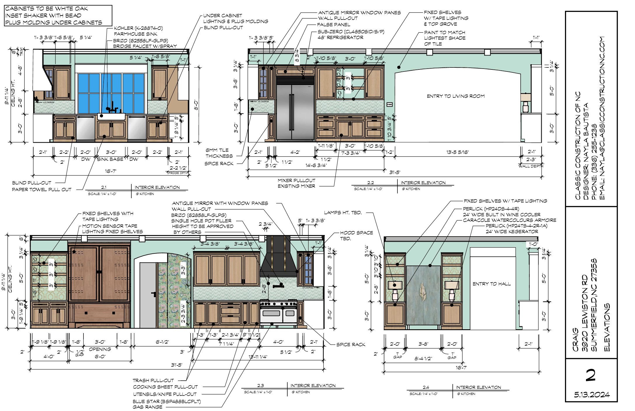
Custom Butler's Pantry with Antique Armoire Opening
Redesigned island for storage and seating
Fully customized cabinets for maximized storage
Adjoined laundry room makeover to match kitchen astethics
Timeline
Four Months
Location
Summerfield, NC
Budget
$168K
1.
Before design ever began, the focus was on listening. The homeowners wanted a kitchen that reflected their personal style while better supporting their daily routines. Their existing space felt outdated and inefficient, prompting the desire for a more functional layout that felt fresh, intentional, and tailored to the way they live.

DREAM


2.
DESIGN
With a kitchen of this scale and visibility, thoughtful design was essential. We partnered with one of Greensboro’s most respected designers, Mary Katherine Design, working closely with the homeowners to shape every detail of the space. From fully custom cabinetry to a one-of-a-kind antique armoire that conceals a butler’s pantry, each element was intentionally designed. A reimagined island added both storage and seating, creating a layout that balances beauty with everyday function.

3.
With construction complete, the kitchen now delivers on everything the homeowners envisioned. The finished space blends thoughtful design with everyday usability, offering improved flow, ample storage, and a warm, welcoming atmosphere. What was once outdated is now a kitchen designed to support daily life, entertaining, and time spent together.

DELIVER




